香里園山之手町
物件情報
周辺施設
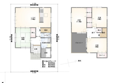
香里園山之手町 の物件概要
【中古一戸建】※地図上に表示される物件の位置は付近住所に所在することを表すものであり、実際の物件所在地とは異なる場合がございます。
00件
最近見た物件
00件
検討リスト
株式会社聖和ホームズ【TOP】 > 物件一覧 > 香里園山之手町
香里園山之手町
物件情報
周辺施設
香里園山之手町 の物件概要
【中古一戸建】※地図上に表示される物件の位置は付近住所に所在することを表すものであり、実際の物件所在地とは異なる場合がございます。

香里園山之手町に関するこだわり条件から探す
枚方市の町名から探す